Zum Inhalt springen
Impressum
Impressum
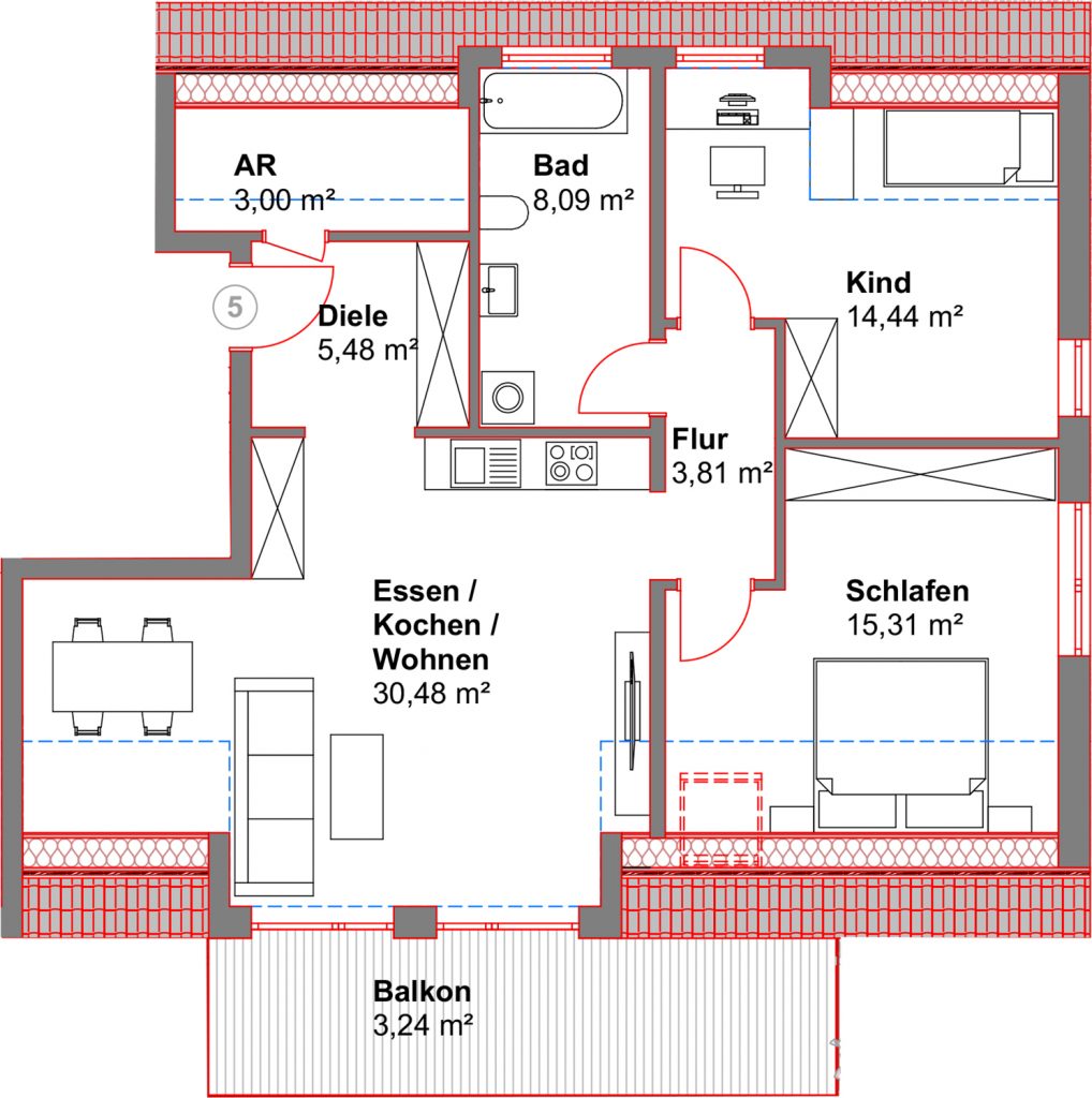
DG, Wohnung Nr. 5